Saba Ali
BIO
Saba is an artistic individual with a keen eye for detail. She is passionate about combining function, aesthetics, and nature to create inclusive environments that enhance well-being. As a graduate, Saba is excited to learn more about residential and commercial design through real-life experiences.
Thesis Project
Sage Dementia Awareness & Day Program Centre
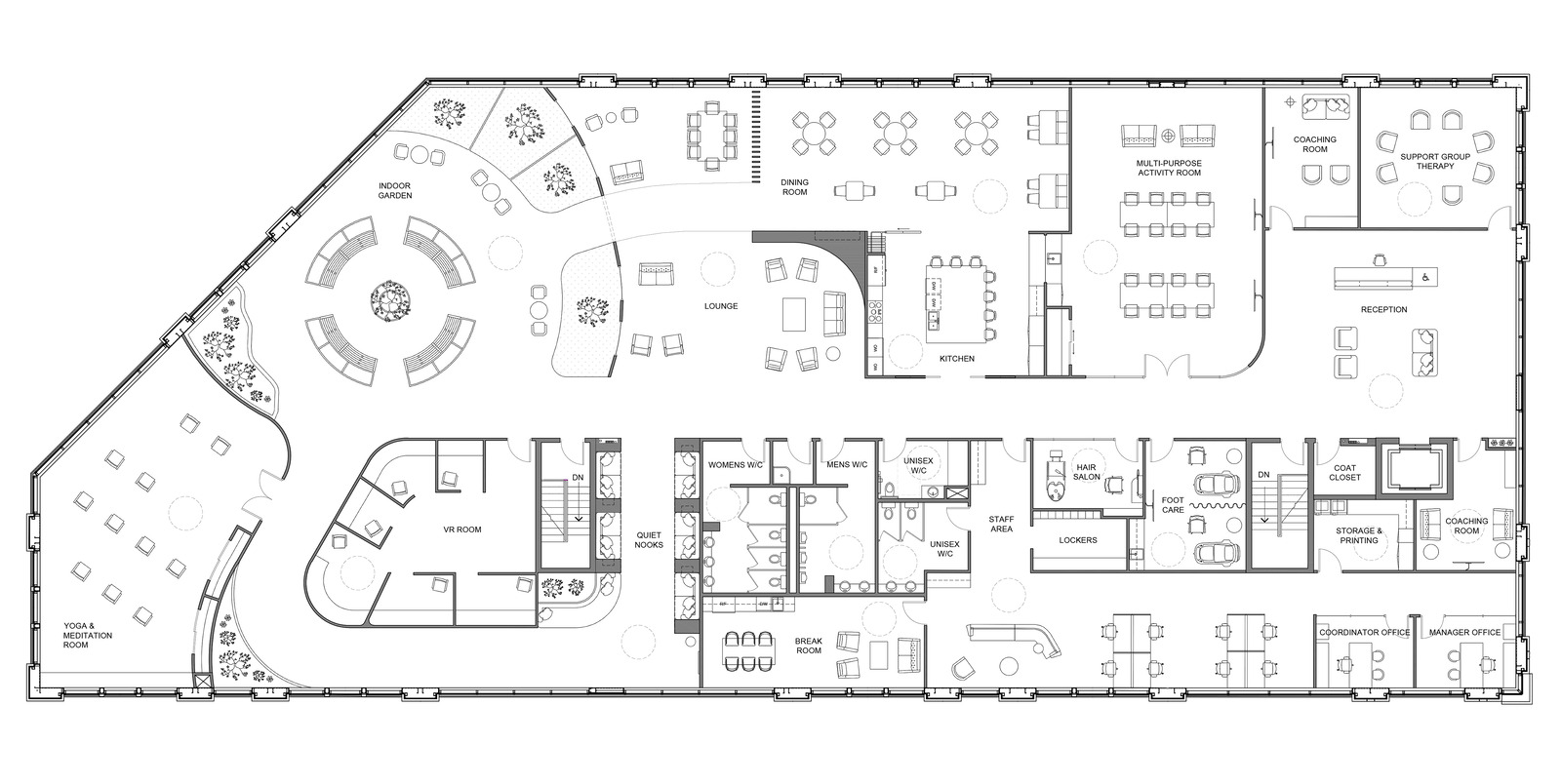
Sage is a dementia awareness and day program facility designed to educate dementia patients and their families about the condition, as well as offer treatment through adult day program activities. Through a home-like atmosphere with versatile spaces and an indoor garden, the facility aims to reduce the stigma around the medical condition by creating an inclusive community that will support one’s social, cognitive, and physical health and well-being to enhance their quality of life.
Preliminary
Dementia is a medical condition that affects the brain and is characterized by one’s cognitive decline. Despite the growing number of cases worldwide, the disease is often stigmatized due to a lack of understanding and awareness. According to the Alzheimer Society, reducing the stigma and supporting the emotional well-being and dignity of persons with dementia are the top research priorities in Canada. Sage is a dementia awareness and day program facility that offers educational services and adult day program activities. Located in Burlington, Ontario, the centre fills the city's gaps by providing a safe and stimulating environment for dementia patients and families. This is accomplished through coaching rooms, support group therapy, and program rooms to accommodate various activities. To minimize dementia symptoms, the facility creates a welcoming environment through a home-like atmosphere with biophilic design strategies. The design further supports client health through group and quiet settings, contrasting finishes, sound-absorbing materials, and open sightlines to promote independence. Overall, Sage allows clients to enhance their quality of life while making meaningful connections with others.
Process
Zone Development Diagram and Organization Sketch
Block Plan
Enrichment Strategies
Product
Developed Plan
Indoor Garden Perspective
Bench Seating
Accessible Raised Bed Planters
Garden
Indoor Garden Elevation
Accessible Counter and Stove
Kitchen Island
Dining Room
Dining Room & Kitchen Elevation
Kitchen Perspective
Accessible Counter and Stove