Emily Crocetti
BIO
As a designer, I aspire to design homes for families to build a future in. I enjoy challenging myself through every project to source sustainable materials and create a universally accessible space for each and every user.
Thesis Project
Sexual Assault Recovery Center
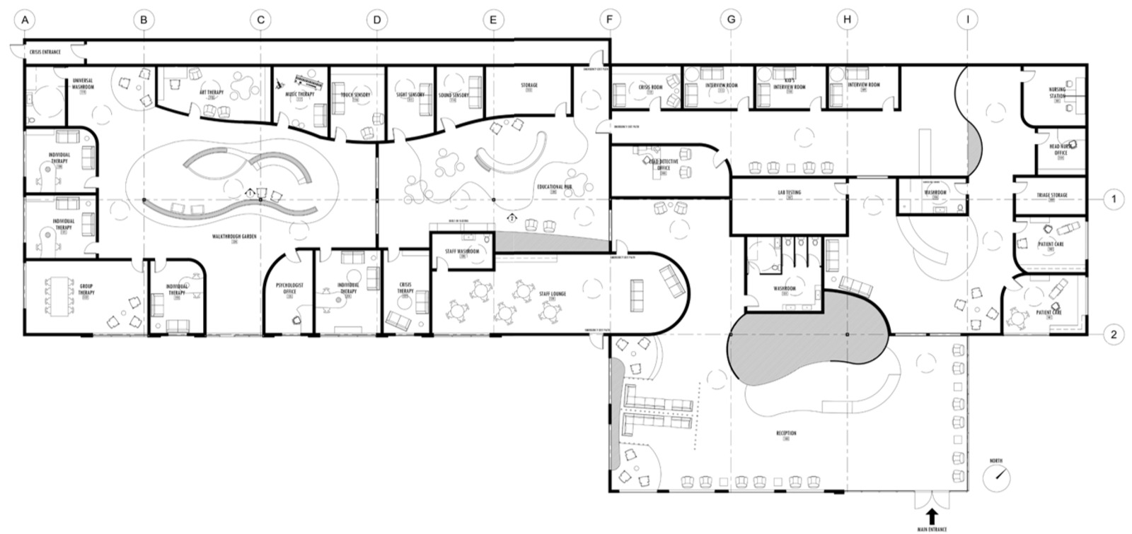
The Sexual Assault Recovery Center is dedicated to being a safe space for any victim of sexual assault or sexual harassment. Its goal is to invite victims to share their stories, receive help from registered psychologists and heal from their past traumas. The Recovery Center is home to everything a victim of assault would need to begin their healing process and each victim will be met with love, empathy, and as much protection as needed from the friendly faces working at and using the Center. You are strong and beautiful; it is not your fault, and we are here for you.
Preliminary
The purpose project is to create a center for sexual assault victims who may be struggling with PTSD among other things relating to the abuse. Creating a space that not only offers a vast amount of therapy options and access to law enforcement if necessary but also calming spaces that are “trigger-friendly” for when victims feel overwhelmed by stressful flashbacks and triggers.
Process
View From the Living Wall
Reception Semi-Private Seating
Built-In Arch Seating
Product
Walkthrough Garden
Educational Hub
3D Wavy Wall Panel
Natural Plaster
Reclaimed Hardwood
Educational Hub Elevation
Sensory Room
Accessible Wall Indicators
Built-In Arch Seating
Walkthrough Garden Elevation
Final Floor Plan