Megan Sarmatiuk
BIO
As an Designer, I hope to create accessible and meaningful designs. The psychology of design plays a key role in how I approach my work to create spaces that can not only impact, but influence decision making and overall mental and physical health to enhance the quality of experience for all guests.
Thesis Project
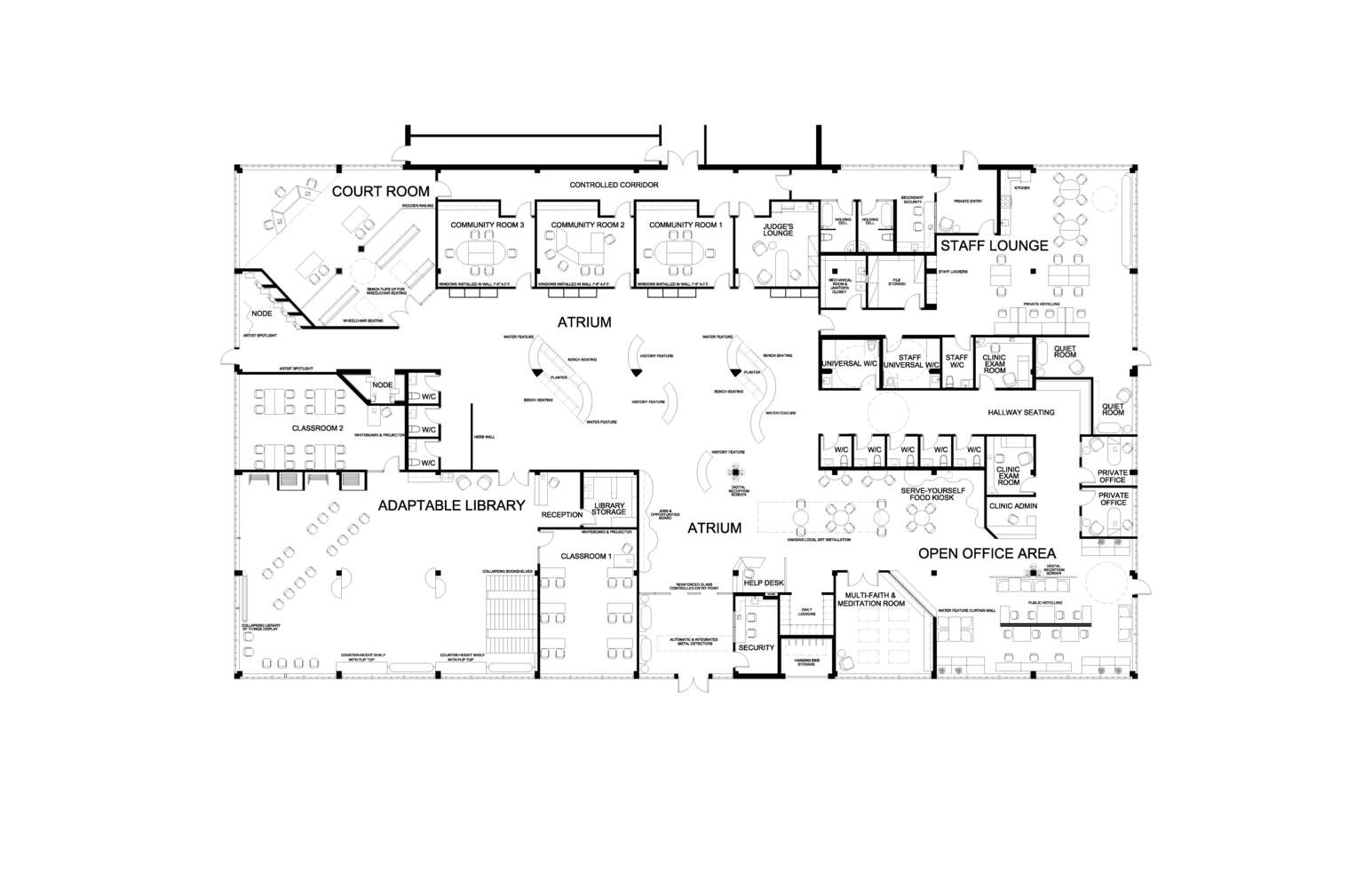
Mississauga Community Justice Centre
The Mississauga Community Justice Centre fills gaps in the existing North American justice system by connecting correction and rehabilitation directly into the fabric of the community. This facility aims to create a comfortable and natural space for effective healing that lowers recidivism through individual accountability, personal growth and community support.
Preliminary
This study analyzes the effects of biophilic design principles on mental health and the reform process to discover whether regular access to natural light and fresh air can be a factor in lowering recidivism rates. By reviewing previous studies and literature about the effects of light, air, and the comfort and control of an operable window on mental and physical health, as well as conducting qualitative interviews with members of existing justice facilities, this research concludes that while daylight and views can affect mental and physical health, focusing on the adjustability, personalization, and operability of these types of spaces is more fundamental to user satisfaction and comfort. Although, further study is recommended to understand the most effective balance between old construction and new construction practices, namely in identifying and defining what qualities are considered most comfortable for all users of justice facilities.
Process
Floorplan Ideation Sketch 1
Floorplan Ideation Sketch 2
Floorplan Ideation Sketch 3
Floorplan Ideation Sketch 4
Product
Final Floor Plan