Maryse Siervo
BIO
When designing interior spaces, I like to approach them with flexibility and an open mind. I am always willing to try new ideas and embrace new design challenges.
Thesis Project
4Leaf Child Care & Development Centre
4Leaf Child Care & Development Centre is a facility dedicated to providing early childhood services that encourage learning and development for children with autism spectrum disorder. This facility also aims to benefit and improve their mental/physical health in their early stages of life to enhance their future lifestyle.
Preliminary
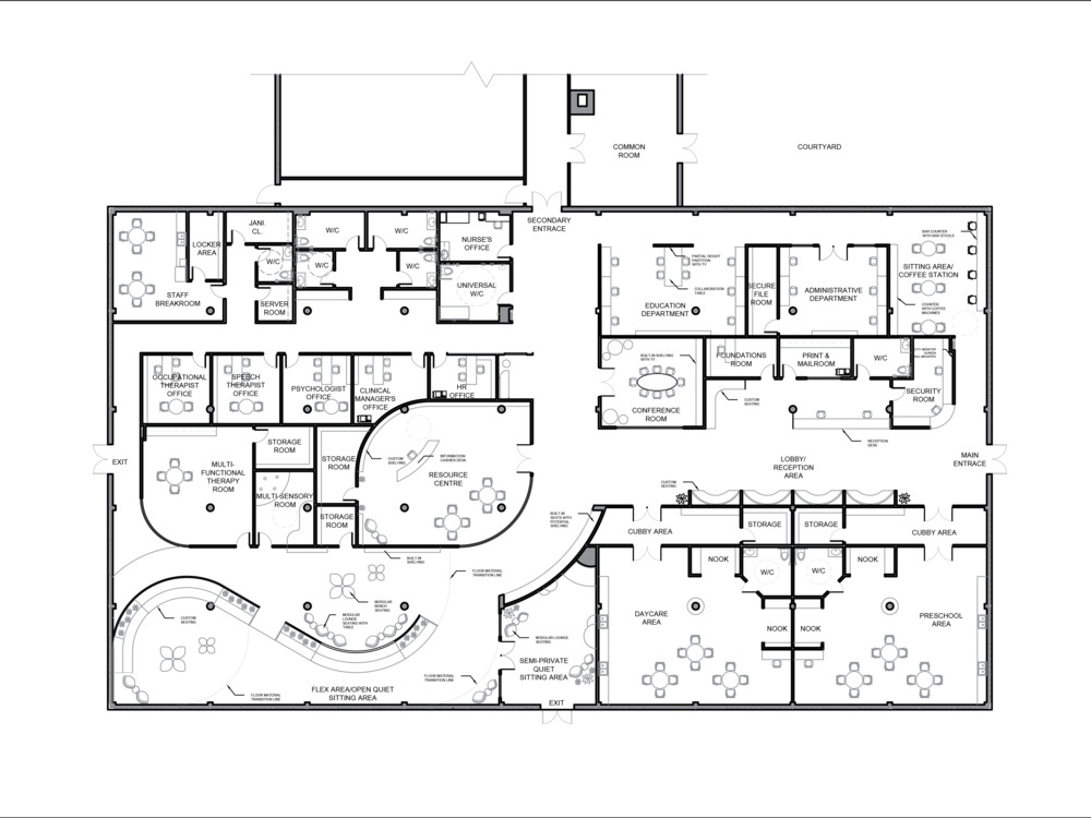
4Leaf Child Care & Development Centre is located in the Small Arms Inspection Building in Mississauga, Ontario. This facility provides Day Care/Preschool services and Early Childhood Intervention services. Overall, this project strives to promote, encourage, and bring support to children with autism spectrum disorder by creating a safe, functional environment to facilitate these activities. This includes designing spaces that minimize sensory overload, optimizing exposure to natural light, incorporating acoustical features to reduce distractive noises, and adding biophilic elements to improve occupant well-being. For the design concept, a slow reveal of interior features and a gradual transition between different zones is achieved by emphasizing gentle curves. Not only will this allow time to process the physical environment, but aims to evoke a sense of motivation to explore and be curious. Repetition of playful colours, curvy shapes, and soft materiality builds a comfortable inviting space.
Process
Zone Diagram & Organization Sketch
Block Plan
Final Developed Floor Plan
Product
Key Area 1: Resource Centre Rendering
Key Area 2: Flex Area Rendering
Key Area 2: Flex Area Elevation
Key Area 1: Resource Centre Elevation
Key Area 3: Multi-Sensory Room Rendering