Grace Varga
BIO
My name is Grace Varga. I am a young ambitious designer who is continuously striving to become the interior designer I have always dreamt of being. I have a passion for unique ideas, sustainable and innovative design, and creating spaces that can be enjoyed by everyone.
Thesis Project
Belsö Béke Facility
The Belsö Béke Facility is an addiction recovery centre that will support and guide individuals on their journey of healthy and clean living. Through physical, emotional, and mental interactive and/or individual foster, the occupants of the facility will have a safe space to communicate and engage with one another on their way to recovery.
Preliminary
The Belsö Béke Facility will provide a safe environment through multiple zones in which occupants will find peace and nourishment which will enable healing from the inside and out. Specific therapeutic strategies will be empathized through logical repetitive quadrants which focus on the mental, physical, and emotional wellbeing of the occupants. While exploring the usage of organic materials with minimalistic finishes and biophilia to promote healing, this will create an idyllic environment for recovery. Through the balance of fostering, nurturing and growth of the occupants, this facility will embody the symbolic meaning behind fighting for a new beginning.
Process
Spatial Model Perspective
Product
Developed Floor Plan
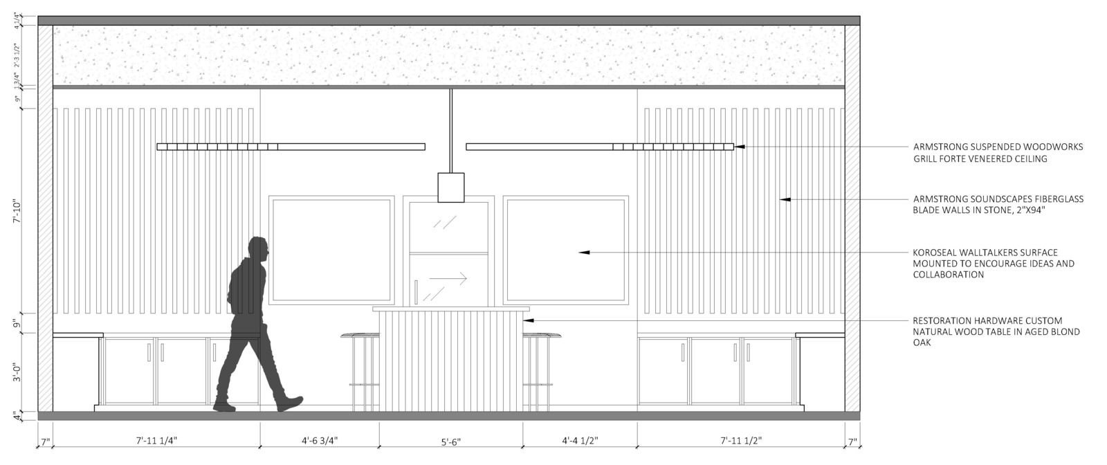
Collaborative Workspaces Elevation
Greenhouse Elevation
Collaborative Workspace Rendering
Greenhouse Rendering